BRIE

BRIE

2024

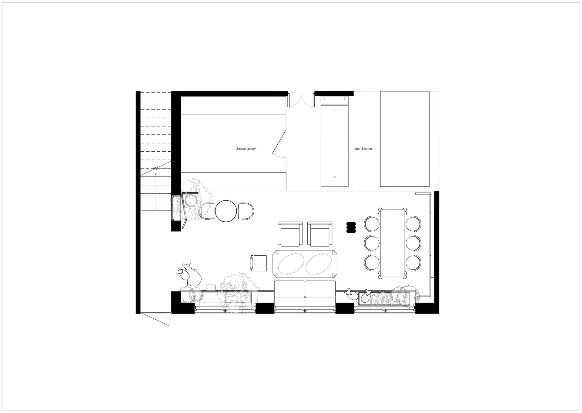
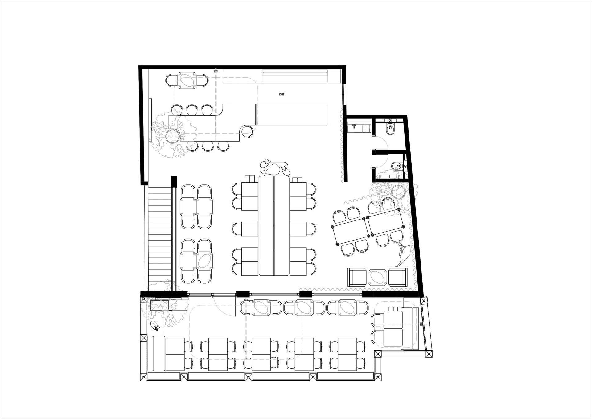
Restaurant & Cheesery
Area: 250 m²
Location: Indonesia, Bali, Ubud
Ph: Alexandr Volodin

BRIE

The first restaurant on the island with its own in-house cheesery, offering European cuisine with a French touch. BRIE’s design is inspired by the aesthetics of a French garden, with its characteristic sheared trees, grazing sheep and a plenty of plants. The luxurious textures of the local wood species are complemented by vintage glassware and minimalistic objects in modern shapes, such as a stainless steel bar and an umbrella creating shade from the bright local sun.

Первый ресторан на острове с собственной сыроварней, предлагающий европейскую кухню с французским акцентом. Дизайн BRIE вдохновлён эстетикой французского сада с характерными подстриженными деревьями, пасущимися овцами и обилием растений. Роскошные текстуры местных пород дерева дополняются винтажной посудой и минималистичными предметами современных форм, такими как бар из нержавеющей стали и зонт, создающий тень от яркого местного солнца.

BRIE
BRIE
BRIE
BRIE
BRIE
BRIE
BRIE
BRIE
BRIE
BRIE
BRIE
BRIE
BRIE
BRIE
BRIE
BRIE
BRIE
BRIE
BRIE
BRIE
BRIE
BRIE
BRIE